磁力驱动泵的分类
磁力驱动泵的分类:
磁力驱动泵是一种输送液体的机器。它以一定的方式将来自原动机的机械能传递给泵内的被输送液体,使液体的能量增大,依靠泵内被输送液体与液体接纳处之间的能量差,将被输送的液体压送到目的地,从而完成对液体的输送。磁力驱动泵的类型可按以下方式分类。
按工作原理分类(图1)主要有叶片式磁力驱动泵和容积式磁力驱动泵两种类型。

图1 磁力驱动泵类型
一、叶片式磁力驱动泵
叶片式磁力驱动泵是依靠磁力联轴器(磁力耦合驱动)带动叶轮连续旋转,将能量传递给被输送的液体,使其速度(动能)和压力能(势能)均增大(主要是速度增大),然后再将其速度降低,使大部分动能转换为压力能,在被送液体压力升高后实现输送。叶片式磁力驱动泵主要有磁力驱动离心泵和磁力驱动旋涡泵。
1、磁力驱动离心泵
磁力驱动离心泵是根据叶片式泵中的离心泵进行设计的,只是在驱动形式上采用磁传动原理。由于离心式磁力驱动泵与离心泵工作原理相同,主要是依靠一个或数个叶轮旋转时产生的离心力而输送流体,所以称为磁力驱动离心泵。

图2 单级普通离心泵结构示意
1-泵体 2-叶轮 3-泵盖 4-轴承悬架 6-轴承悬架 5,9-轴承压盖 6,8-轴承
7-轴 10-叶轮螺母 11-壳体口环 12-叶轮口环 13-机封轴承 14-机封
15-机封压盖 16,20-防尘盘 17-甩油环 18-冷却水套 19-支架
磁力驱动离心泵与离心泵是有一些区别的。磁力驱动离心泵是在原离心泵的基础进行设计、改制的,除驱动形式、密封形式不同外,其结构、原理等基本相同。如图2所示是单级普通离心泵结构示意图,图3所示为单级磁力驱动离心泵结构示意图。可根据图2和图3加以对照比较其区别。

图3 单级磁力驱动离心泵结构示意
磁力驱动离心泵的类型可按以下条件区分,如图4所示。

图4 磁力驱动离心泵分类示意
(1)磁力驱动离心泵按叶轮个数和级数分类有:单级磁力驱动离心泵、双级磁力驱动离心泵、多级磁力驱动离心泵。
a、单级磁力驱动离心泵,泵结构中只有一个叶轮(图3)。
b、双级磁力驱动离心泵,泵结构中有两个叶轮(图5)。

图5 双级磁力驱动离心泵结构示意
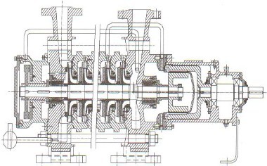
c、多级磁力驱动离心泵,泵结构中有多个叶轮(两个以上)。多级磁力驱动离心泵一个叶轮便是一个级,级数越多,扬程越高,主要有水平吸入多级磁力驱动离心泵(图6)和竖直吸入多级磁力驱动离心泵(图7)

图6 多级磁力驱动离心泵(水平吸入式)结构示意

图7 多级磁力驱动离心泵(竖直吸入式)结构示意
(2)磁力驱动离心泵按安装形式分类有:卧式磁力驱动离心泵和立式磁力驱动离心泵。
a、卧式磁力驱动离心泵,如图8所示。

图8 卧式磁力驱动离心泵示意
b、立式磁力驱动离心泵,立式磁力驱动管道泵是在原立式(离心)管道泵型的基础上设计、改制而成的新型立式结构磁力泵(图9),它秉承原立式(离心)管道泵的优点,有与磁力传动的完美结合,达到了无泄漏输送液体的要求。

图9 新型立式式结构磁力泵示意
立式管道磁力泵可直接安装在管道的任何部位,对管道中的介质进行加压,可直接替换原来的立式(离心)管道泵,安装尺寸与立式(离心)管道泵完全相同,方便检修与更换。
(3)磁力驱动离心泵按吸入形式分类有:灌入式磁力驱动离心泵和自吸式磁力驱动离心泵。
a、灌入式磁力驱动离心泵,灌入式磁力驱动离心泵是在泵启动前需对启动的泵进行介质灌入,又称为灌泵,经短时间灌泵,使室内充满介质(液体)后,方可启动投入正常运转。如泵室内没有充满介质(液体),启动运转会产生汽蚀而无法正常运行,严重时可造成生产和设备事故。
b、自吸式磁力驱动离心式泵,自吸式磁力驱动离心式泵是磁力驱动离心泵的一种。自吸泵顾名思义,就是泵启动前不需引灌介质,经短时间运转,靠泵本身的作用,把水吸上来,投入正常运转。泵体有吸液室、储液室、蜗壳、回流孔、气液分离室等部件组成。泵启动后,在离心力的作用下,吸水室中的剩余液与进液管路中的空气被叶轮搅拌成气水混合物,混合物经蜗壳进入气液分离室,随着速度减慢,导致气水分离,空气由泵出液口排出,液体经回水孔返回泵内,经过多次循环,进液管道中的空气被排净,使泵内形成一定的真空度,达到自吸作用。自吸式磁力驱动离心泵不但具有自吸功能,而且为磁力驱动结构,具有全封闭、耐腐蚀、无泄漏的特点,是自动化远距离控制和流动使用的理想用泵(图10)。

图10 自吸式磁力驱动离心泵示意
(4)磁力驱动离心泵按其连接型式分类:有非直联与直联磁力驱动离心泵两种类型
a、非直联式:非直联式磁力驱动离心泵用于功率较大、轴向长度不受限制的工况(图11)。

图11 非直联式磁力驱动离心泵示意
b、直联式:直联式磁力驱动离心泵用于功率较小或轴向长度受限制的工况(图12)。

图12 直联式磁力驱动离心泵示意
1-泵体 2-叶轮 3-泵轴 4-轴套 5-滑动轴承 6-泵盖
7-内磁转子 8-隔离套 9-外磁转子 10-电动机
(5)磁力驱动离心泵按制造材料分类有:金属磁力驱动离心泵和非金属磁力驱动离心泵。
a、金属磁力驱动离心泵:金属磁力驱动离心泵按使用材料来分主要有碳钢、奥氏体不锈钢、双相不锈钢、钛合金、哈氏合金等。
b、非金属磁力驱动离心泵:非金属磁力驱动离心泵主要有两种:一种是钢塑复合磁力驱动离心泵;另一种是全塑料磁力驱动离心泵。泵的过流部件采用可溶性聚四氟乙烯(PFA)、聚偏二氟乙烯(PVDF)、聚全氟乙丙烯(F46)或超高分子量聚乙烯(UH-MWPE)、聚丙烯(PP)等制造。
钢塑复合磁力驱动离心泵的泵壳、中体为金属材料,内壁涂覆或者衬上各种耐腐蚀塑料,因此该泵有足够的强度承受管道以及外界的机械冲击,而且该种形式的泵耐温、耐压力差,使用的范围较小,且传动功率一般在4KW以下。
(6)磁力驱动离心泵按输送介质的温度分类有:常温磁力驱动离心泵和高温磁力驱动离心泵。
a、常温磁力驱动离心泵是输送常温介质的磁力驱动离心泵。它的工作原理与普通单级离心泵相同。
b、高温磁力驱动离心泵是一种新型结构的磁力驱动离心泵,主要是为了输送高温介质。其工作原理为当泵内部达到一个热平衡时,泵壳内部介质将不再流进隔离套中去,隔离套端由辅助叶轮提供一个高压来带动隔离套的一个自循环系统。隔离套端自循环系统将磁涡流热带走,使内转子区域介质温度得到降低,磁转子不会因为输送介质温度过高而消磁。如图13所示为高温磁力驱动离心泵结构示意。

图13 高温磁力驱动离心泵结构示意
此外,磁力驱动离心泵还有磁力驱动离心式液下泵和磁力驱动离心式特殊结构泵等。
磁力驱动离心式特殊结构泵是根据装置工况的特殊性和特殊需求,按照某一种泵型的结构所制造一种泵类,如图14所示。

图14 磁力驱动离心式特殊结构泵示意
2、磁力驱动旋涡泵
磁力驱动旋涡泵是原旋涡泵基础上进行设计、改制而成的一种新型环保泵。
磁力驱动旋涡泵在原旋涡泵基础上进行设计、改制而成的一种新型环保泵。
磁力驱动旋涡泵在水力上完全遵循了原旋涡泵的设计,只是在驱动方式上进行设计、改制而成。磁力驱动旋涡泵通常由泵体(水利部分)、强力磁耦合器和电动机组成(图15)。

图15 磁力驱动旋涡泵结构示意
1-泵体 2-叶轮 3-泵轴 4-泵盖 5-中间架 6-连接架 7-前泵盖
8-滑动轴承 9-轴套 10-止推盘 11-内磁转子 12-隔离套
13-外磁转子 14-外转子定位套 15-电动机
磁力驱动旋涡泵与磁力驱动离心泵一样,主要有四部分组成:壳体部分、转子部分、连接部分、传动部分。
(1)壳体部分,泵体部分是由泵体、泵盖等组成,它承受泵的全部工作压力。
(2)转子部分,转子部分主要由叶轮、轴套、滑动轴承、止推盘、内磁转子部件等组成。
(3)连接部分,连接部分是由连接架、辅助支架、底板等静止连接件组成,主要起支撑连接作用。
(4)传动部分,传动部分是泵与原动机的连接。如图15所示连接方式为直接连接,使泵的结构更加紧凑。
二、容积式磁力驱动泵
容积式磁力驱动泵是在周期性地改变泵腔容积的过程中,以作用和位移的周期性变化将能量传递给被输送介质(液体),使其压力直接升高到所需的压力值后实现输送。
容积式磁力驱动泵主要是根据容积式泵中的转子泵进行设计、改制的。在设计、改制的过程中遵循了原转子泵设计原理,只是在驱动形式上采用磁力耦合传动。所以,容积式转子磁力驱动泵与容积式转子泵的工作原理相同。容积式磁力驱动泵主要有:磁力驱动螺杆泵、磁力驱动齿轮泵、磁力驱动滑片泵。
(1)磁力驱动螺杆泵
磁力驱动螺杆泵有双螺杆泵和三螺杆泵。
磁力驱动螺杆泵主要应用于燃油输送、液压过程、船舶过程、石油、化工等领域。也可以用来输送温度≤150℃,适合压力2.5MPa以下,不含固体颗粒、无腐蚀性、具有润滑性能的介质。
磁力驱动螺杆泵的材质:主、从长螺杆16MnCrS5,40Cr,38CrMoALA;泵体,HT200,QT450-10,ZCuSn10P1,ZG270-500。如图16所示为磁力驱动双螺杆泵结构示意。

图16 磁力驱动双螺杆泵结构示意
(2)磁力驱动齿轮泵
磁力驱动齿轮泵结构紧凑、机型小、流量低、压力高、自润滑、噪声低、寿命长,可广泛应用于石油、化工、制药、电镀、印刷、清洗、农业、食品加工、轻工机械、医疗器械、胶片制造、科研机构、国防工业等领域。磁力驱动齿轮泵主要输送不含固体颗粒和纤维,有一定润滑性的流体。
磁力驱动齿轮泵属于外啮合齿轮泵,它在原齿轮泵的基础上改进设计,在驱动连接形式上采用磁力驱动装置(图17)。

图17 磁力驱动齿轮泵结构示意
1-压盖 2-滑动轴承 3-主动轴 4-密封圈 5-内磁钢 6-中间联体
7-电机 8-前盖板 9-齿轮 10-泵体 11-从动轴 12-后盖板
13-隔离套 14-联轴器 15-支架 16-进口接管 17-出口接管
磁力驱动齿轮泵的工作原理:磁力驱动齿轮泵的磁传动部分有内、外磁转子组成,由隔套将内磁转子与外磁转子及介质隔绝,内磁转子装于泵轴上,外磁转子由电机驱动,利用磁学原理,实现外磁转子带动内磁转子非接触的力矩传递,达到驱动齿轮泵的目的。磁力驱动齿轮泵的壳体、端盖和齿轮的各个齿间槽组成了许多密封的工作腔,当齿轮旋转时,吸油腔由于啮合着的轮齿逐渐脱开,密封工作腔容积逐渐增大,形成部分真空,箱中的介质被吸进来,并随着齿轮旋转。当介质到达压液腔时,由于轮齿在这里逐渐进入啮合,密封工作腔容积不断减小,介质便被挤压出去。这就是外啮合齿轮泵的工作原理。
根据输送介质的不同,磁力驱动齿轮泵可选用HT250、zg230-450、奥氏体不锈钢等多种材质,磁材料选用钐钴稀土永磁材料,隔离套采用不锈钢材料。
磁力驱动齿轮泵只有静密封,没有动密封,从根本上解决了跑、冒、滴、漏问题,做到了完全无泄漏,从而被誉为高环保型的高科技产品。
(3)磁力驱动滑片泵

图18 磁力驱动滑片泵结构简图
1-滑片转子 2-内磁转子 3-隔离套 4-外磁转子 5-电机驱动端
磁力驱动滑片泵的磁传动部分由内、外磁转子组成,由隔套将内磁转子与外磁转子及介质隔绝,内磁转子装于泵轴上,外磁转子由电机驱动(图18),利用磁学原理,实现外磁转子带动内磁转子非接触的力矩专递,达到驱动滑片泵的目的。磁力驱动滑片泵主要由泵体、内套、转子、轴、滑片、侧板等零件组成。滑片安装在转子槽内,可沿槽滑动,当转子旋转时,滑片靠自身离心力紧贴内套内壁,由内套内表面、转子外表面、滑片及两侧端板面之间形成若干个封闭工作室,当转子逆时针旋转时,右边的滑片逐渐伸出,相邻两滑片间容积逐渐增大,形成局部真空,液体由吸入室进入工作室,这是泵的吸入过程。左边的滑片被内套逐渐压入槽内,相邻两滑片间封闭容积逐渐减小,将液体压出排出口,这是泵的压出过程。转子转一周,完成一次吸入压出。如此往复做功达到输送介质的目的。
从以上介绍中可知,各种形式磁力驱动泵主要是改造了其驱动形式,增加了介质循环部分,其他均无改变。