浙江中耐泵业有限公司
客服:0577-66998225
传真:0577-66998228
地址:浙江省永嘉县瓯北镇三桥工业区
ISG型立式单级管道离心泵
产品型号:ISG型
所属类目:离心泵
产品简介:ISG型单级单吸立式管道离心泵为立式结构,进出口口径相同,且位于同一中心线上,可象阀门一样安装于管路之中,外形紧凑美观,占地面积小,建筑投入低,如加上防护罩则可置于户外使用
■ ISG型立式单级管道离心泵产品概述:

ISG型立式单级管道离心泵是中耐泵阀科技人员联合国内水泵专家选用国内优秀水力模型,采用IS型离心泵之性能参数,在一般立式泵的基础上进行巧妙组合设计而成,同时根据使用温度、介质等不同在离心泵的基础上派生出适用热水、高温、腐蚀性化工泵、油泵。该系列产品具有高效节能、噪音低、性能可靠等优点。符合新国家机械部JB/T53058-93的标准要求。产品按国际IS02858标准设计制造。93年通过国家机械工业部管道泵产品统检合格。供输送不含固体颗粒的清水及物理化学性质类似于水的液体之用。(ISG型泵又称管道泵、离心泵、管道离心泵、单级离心泵、立式离心泵、增压泵、热水泵、循环泵等)。
■ ISG型立式单级管道离心泵型号意义:
■ ISG型立式单级管道离心泵使用条件:
1、吸入压力≤1. 0MPa,或泵系统高工作压力≤1.6MPa,即泵吸入口压力+泵扬程≤1.6MPa,泵静压试验压力为2.5MPa,订货时请注明系统工作压力。泵系统工作压力大于1.6MPa时应在订货时另行提出,以便在制造时泵的过流部分和联接部分采用铸钢材料。
2、环境温度<40℃,相对湿度<95%。
3、所输送介质中固体颗粒体积含量不超过单位体积的0.1%,粒度<0.2mm。
注:如使用介质为带有细小颗粒,请在订货时说明,以便厂家采用耐磨式机械密封。
■ ISG型立式单级管道离心泵主要用途:
1. ISG立式管道离心泵,供输送清水及物理化学性质类似于清水的其他液体之用,适用于工业和城市给排水、高层建筑增压送水、园林喷灌、消防增压、远距离输送、暖通制冷循环、浴室等冷暖水循环增压及设备配套,使用温度T<80℃。
2. IRG型立式热水泵适用于冶金、化工、纺织、木材加工、造纸以及饭店、浴室、宾馆等锅炉高温热水增压循环输送以及城市住房采暖循环用泵,使用温度120℃以下。
3. GRG型立式高温离心泵广泛用于:能源、冶金、化工、纺织、造纸以及饭店、浴室、宾馆等锅炉高温热水增压循环输送以及城市住房采暖循环用泵,使用温度240℃以下。
4. IHG型立式不锈钢管道离心泵,供输送不含固体颗粒,具有腐蚀性,粘度类似于水的液体,适用于石油、化工、冶金、电力、造纸、食品制药和合成纤维等部门,使用温度为-20℃ ~ 120℃。
5. YG型管道油泵,供输送汽油、煤油、柴油等石油产品,被输送介质温度为-20℃ ~ + 120℃。
6. IHGB型立式不锈钢防爆型化工离心泵,适用于输送易燃性化工液体。
7. ISGD、IRGD、GRGD、IHGH、YGD、IHGBD型立式低速离心泵,适用于环境噪声要求很低的场合及空调循环等。
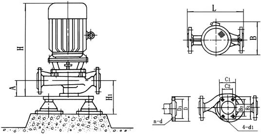
■ ISG型立式单级管道离心泵结构图:

■ ISG型立式单级管道离心泵产品特点:
1、ISG型单级单吸立式管道离心泵为立式结构,进出口口径相同,且位于同一中心线上,可象阀门一样安装于管路之中,外形紧凑美观,占地面积小,建筑投入低,如加上防护罩则可置于户外使用。
2、叶轮直接安装在电机的加长轴上,轴向尺寸短,结构紧凑,泵与电机轴承配置合理,能有效地平衡泵运转产生的径向和轴向负荷,从而保证了泵的运行平稳,振动小、噪音低。
3、轴封采用机械密封或机械密封组合,采用进口钛合金密封环、中型耐高温机械密封和采用硬质合金材质,耐磨密封,能有效地延长机械密封的使用寿命。
4、安装检修方便,无需拆动管道路系统,只要卸下泵联体座螺母即可抽出全部转子部件。
5、ISG型单级单吸立式管道离心泵可根据使用要求即流量和扬程的需要采用泵的串、并联运行方式。
6、ISG型单级单吸立式管道离心泵可根据管路布置的要求采用泵的竖式和横式安装。
■ ISG型立式单级管道离心泵性能参数:
.jpg)

■ ISG型立式单级管道离心泵管道连接方式:
■ ISG型立式单级管道离心泵准备、启动与停车:
一、起动前准备:
1、试验电机转向是否正确,从电机顶部往泵看为顺时针旋转,试验时间要短,以免使机械密封干磨损。
2、打开排气阀使液体充满整个泵体,待满后关闭排气阀。
3、ISG型立式离心泵启动前检查各部位是否正常。
4、用手盘动泵以使润滑液进入机械密封端面。
5、高温型应先进行预热,升温速度50℃/小时,以保证各部受热均匀。
二、起动:
1、全开进口阀门。
2、立式离心泵启动时关闭吐出管路阀门。
3、电机,观察泵运行是否正确。
4、检查轴封泄漏情况,正常时机械密封泄漏应小于3滴/分。
5、检查电机、轴承处温升≤70℃。
6、调节出口间开度以所需工况,如用户在泵出口处装有流量表或压力表,应通过调节出口阀门开度使泵在性能参数表所列的额定点上运转,如用户在泵出口处装有流量表或压力表,应通过调节出口阀门开度,测量泵的电机电流,使电机在额定电流内运行,否则将造成泵超负荷运行(即大电流运行)至使电机烧坏。调正好的出口阀门开启大与小和管道工况有关。
三、停车:
1、关闭吐出管路阀门。
2、停止电机。
3、立式离心泵停车时关闭进口阀门。
4、如长期停车,应将泵内液体放尽。
5、高温型先降温,降温速度<lO°C/分,把温度降低到80℃以下,才能停车。
■ ISG型立式单级管道离心泵运行中的维护与机械密封维护:
一、运行中的维护:
1、进口管道必须充满液体,禁止泵在汽蚀状态下长期运行。
2、立式离心泵应定时检查电机电流值,不得超过电机额定电流。
3、进行长期运行后,由于机械磨损,使机组噪音及振动增大时,应停车检查,必要时可史换易损零件及轴承,机组大修期一般为一年。
4、运行过程中应有专人管理维护,以免发生意外。
5、每运行500个小时应对轴承进行加油。电机功率大于11KW配有加油装置,可用高压油枪直接注入,以保证轴承润滑优良。
二、机械密封维护:
1、泵使用时机械密封润滑应清洁无固体颗粒。
2、立式离心泵使用时严禁机械密封在干磨情况下工作。
3、泵起动前应先盘动泵(电机)几圈,以免突然起动造成石墨坏断裂损坏。
4、密封泄漏量允差3滴/分。否则应检查。
离心泵订货友情提示:
● 请提供以下详细数据:①ISG型立式单级管道离心泵产品名称与型号②ISG型立式单级管道离心泵流量③ISG型立式单级管道离心泵扬程(m)④ISG型立式单级管道离心泵口径⑤ISG型立式单级管道离心泵电机功率(KW)⑥ISG型立式单级管道离心泵转速(r/min)⑦ISG型立式单级管道离心泵电压〔V〕⑧ISG型立式单级管道离心泵吸程(m)⑨ISG型立式单级管道离心泵是否带附件以便我们的为您正确选型。
● 若已经由设计单位选定我公司的ISG型立式单级管道离心泵产品型号,请按ISG型立式单级管道离心泵型号直接向中耐泵阀销售部订购。
● 当使用的场合非常重要或环境比较复杂时,请您尽量提供设计图纸和详细参数,由我们中耐泵阀的技术专家为您审核把关。
● 感谢您访问我们中耐泵阀的网站【www.b-fz.com】如有任何疑问.您可以致电给我们销售部,我们一定会尽心尽力为您提供优质的服务。


.jpg)
.jpg)



